Join other forward-thinking architects and experience Arkyv
Navigate regulations, collaborate seamlessly, and stay in your workflow.
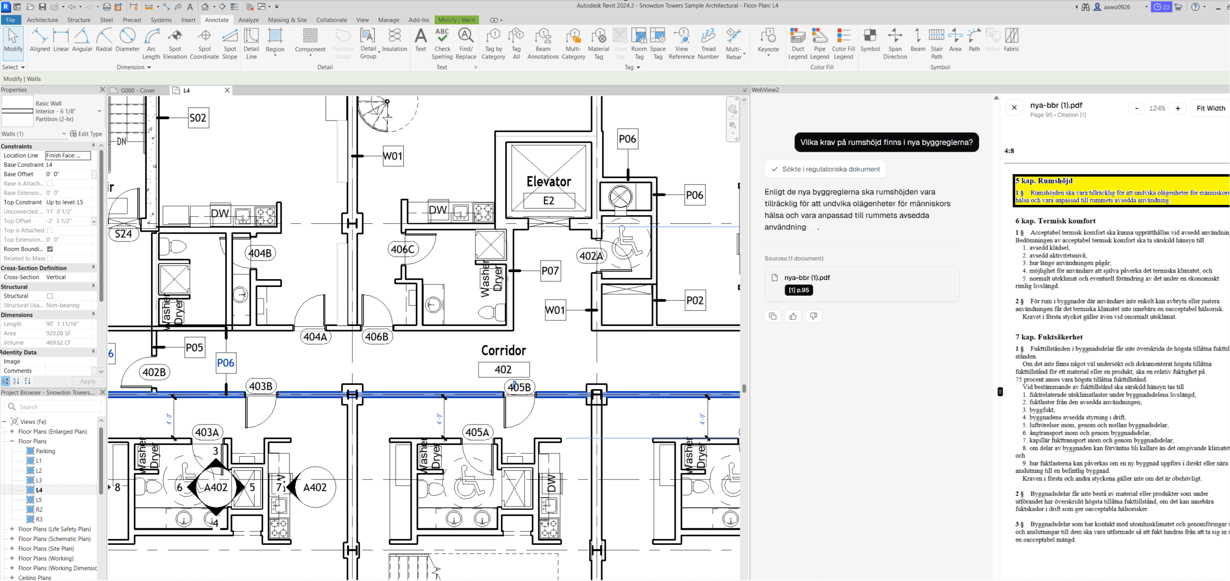
Instantly find source-backed answers to your regulatory questions with AI-powered search.

Create projects with specific requirements and invite your team to collaborate on the project.

Available directly in the CAD software you already use. Stay in the same workflow you're used to.

Straight answers, explained without the fluff.
Receive prompt and precise answers to any of your questions.



We use essential cookies to make our website work. We'd also like to use analytics cookies to understand how you interact with our website and improve your experience.
Essential cookies cannot be disabled as they are necessary for the website to function properly.
Read our Privacy Policy